Ricerca rapida
-
-
CERCA

Castelfranco di Sotto
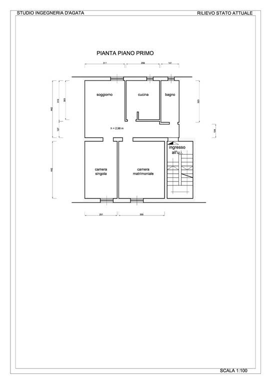
Tre vani al primo piano con garage e cantina

Appartamento

Castelfranco di sotto: proponiamo asta di appartamento posto al primo piano di maggior fabbricato condominiale composto da ingresso, soggiorno, bagno, cucina abitabile, camera matrimoniale e camera singola, di superficie complessiva di 68,00 mq, oltre a cantina di 1,20 mq. e’ assegnato in uso esclusivo all’appartamento, quale bene comune censibile, un garage di 12 mq.
Le case dei sogni Vi seguira' in ogni fase dalla visita della casa alla consegna personale delle chiavi. Le immagini che trovate sono prese dei migliori portali italiani realizzate per conto del tribunale dal ctu incaricato a periziare l'immobile.
Qualsiasi informazione dell'immobili in ASTA, dalla parte TECNICA, BUROCRATICA, a quella delle FOTO, verranno date solo in agenzia previo appuntamento, ma non per telefono tantomeno per mail. Se interessati contattare l'agenzia CON LE CASE DEI SOGNI I TUOI DESIDERI DIVENTANO REALTA’

Caratteristiche

Codice
T41CF24F
Prezzo
38.700,00 EUR
Mq
71
Classe
F
Locali
3,5
Camere
2
Bagni
1
Box
1
Posti auto
1
Stato Immobile
Buono
Grado
Medio
Posizione
Periferia
Panorama
Vista Aperta
Orientamento
Sud Ovest
Lati Liberi
1
Tipo Soggiorno
Sala da Pranzo
Tipo Cucina
Abitabile
Riscaldamento
Autonomo
Tipo Riscaldam.
Caldaia a Condensazione
Tipo Impianto
Radiatori
Fonte Energetica
Metano
Acqua Calda
Autonoma

MAPPA

Via Alcide De Gasperi 2, Castelfranco di Sotto (PI)
Richiedi informazioni
Codice:
Nominativo: *
Telefono: *
Email: *
Dettagli richiesta: *
Autorizzo il trattamento dei miei dati personali in base Regolamento UE n. 679/2016 - Privacy Policy
Invia
Cookie preference